Villa singola in vendita

Concesio, Via Conche - Roncaglie
€ 750.000
200 Mq 200 Mq
2 bagni 2 bagni

Villa singola in vendita

Concesio, Via Conche - Roncaglie

Descrizione annuncio

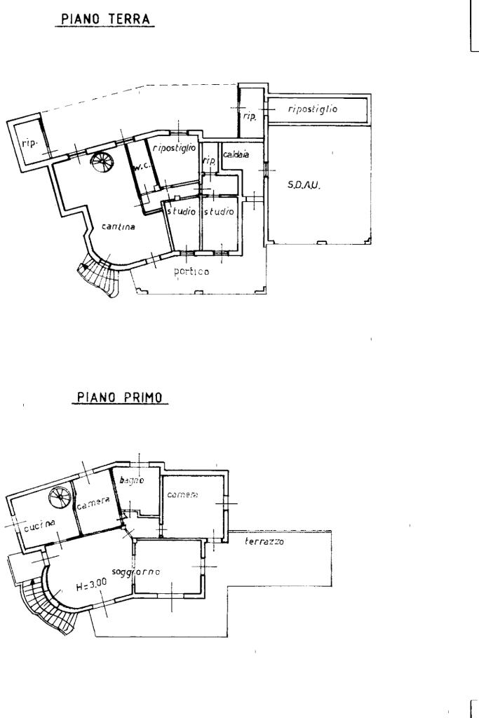
RONCAGLIE:Nella frazione di Roncaglie, in zona pedecollinare, proponiamo villa singola, dalle enormi potenzialità, che si presenta allo stato originale e che necessita di una ristrutturazione completa.

La soluzione, con vista meravigliosa sulla città, si sviluppa su due livelli distinti: il piano terra consta ad oggi di zona taverna con camino, di un bagno di servizio finestrato e di tre vani di cui un ripostiglio e due studi.

Il piano terra è contraddistinto anche dalla presenza di un cavedio, attraverso il quale si raggiunge il box triplo in larghezza e il vano tecnico della caldaia.

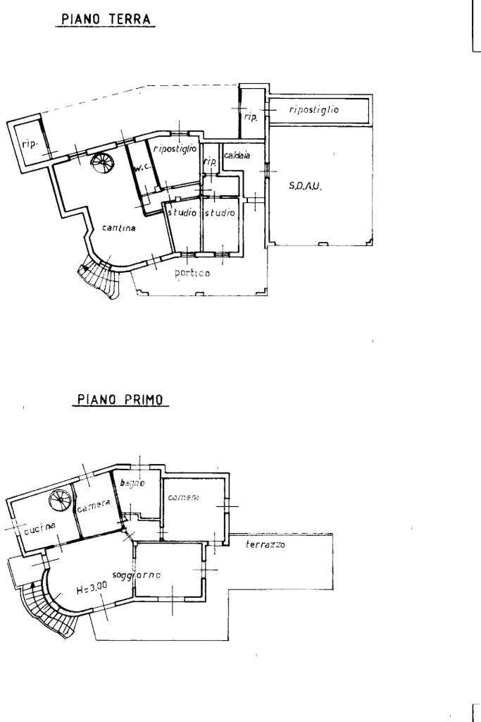
Tramite una scala a chiocciola si accede al primo piano, dove si sviluppa un appartamento trilocale, composto da cucina separata, una spaziosa zona giorno con sala da pranzo, due camere di cui una matrimoniale e una doppia e un bagno finestrato.

Il piano terra è contraddistinto da un ampio porticato, mentre il primo piano ha una terrazza spaziosa da cui si può ammirare il panorama sulla città.

La villa è caratterizzata anche dalla presenza di una piscina, raggiungibile sia dal piano terra tramite una scalinata, sia dal primo piano, accedendovi dal giardino sul retro.

La soluzione è completata da un terreno di circa 5000 mq, con possibilità di parcheggiare all’interno della tenuta. Il riscaldamento è autonomo.

CONCESIO, comune noto come la città natale di Papa Paolo VI è posto nella zona Nord-Ovest di Brescia e circondato dai comuni di Bovezzo, Villa Carcina, Collebeato, Gussago e Brescia. L’alta rilevanza della cittadina è data dalla prossimità della conosciutissima Valtrompia e dalla moltitudine di servizi che offre. Oltre ad avere una vasta rete di mezzi pubblici, si trova nelle immediate vicinanze della Metropolitana del Prealpino, dista circa 15 minuti dal centro della città ed è ben collegato con le tangenziali sud ed ovest. Inoltre, il comune di Concesio offre molteplici servizi come scuole primarie e secondarie, farmacie, supermercati, bar, ristoranti, palestre, biblioteca e diverse altre comodità. E’ divisa in sette frazioni quali: Sant’Andrea, Roncaglie, Ca’ de Bosio, Valpiana, Valsorda, Artignago, Pieve, Costorio, Campagnola e Stocchetta. Ogni agenzia ha un proprio titolare ed e' autonoma - Le presenti informazioni non costituiscono elemento contrattuale.

Mostra tutto

Nelle vicinanze

Trasporto pubblico Trasporto pubblico
Prealpino
Prealpino
3,0 Km
Via Veneto fr.14
Via Veneto fr.14
400 m
Via Mattei n94
Via Mattei n94
590 m
Ricariche auto elettriche Ricariche auto elettriche
A2A Biblioteca comunale di Concesio
610 m
A2A Concesio Kennedy
950 m
A2A Municipio DI CONCESIO
990 m
Burger King Concesio
1,7 Km
A2A Scuola Media Statale Di Concesio
2,1 Km
Scuole Scuole
Scuola Secondaria di Primo Grado
860 m
Scuola Secondaria di Primo Grado Paolo VI
2,1 Km
Scuola Primaria Carlo Collodi
2,2 Km
Scuola dell'Infanzia Gianni Rodari
2,2 Km
Scuole
2,3 Km
Farmacia Farmacia
Farmacia De Michelis
2,0 Km
Farmacia Comunale di Bovezzo
2,1 Km
Farmacia San Vigilio
2,3 Km
Farmacia Vincoli
2,6 Km
Farmacia Maffeis
2,7 Km
Supermercati Supermercati
Eurospin
1,3 Km
Rossetto
1,6 Km
MD
1,9 Km
Auchan
2,0 Km
bennet
2,2 Km
Negozi Negozi
La Forneria
640 m
Magazzini delle Firme
900 m
Negozi
1,9 Km
Tomasoni
2,1 Km
Bosio
2,1 Km
Bar Bar
Godiva
1,5 Km
Adry Bar
1,6 Km
Hilton Club 2
2,5 Km
La Caffetteria
2,7 Km
Ristoranti Ristoranti
Agriturismo alla Griglia
30 m
Agriturismo Castello
300 m
Trattoria Pizzeria Borgo Vecchio
730 m
Trattoria Pizzeria Al Grillo
830 m
Osteria Le Roncaglie
850 m
Mostra tutto

Caratteristiche

Rif.:
61122757
Piano:
Su più livelli di 1
Totale piani:
1
Box:
1
Terrazzi:
2
Camere da letto:
2
Mostra tutto
Prezzo Prezzo
€ 750.000
Rata mutuo Rata mutuo
€ 3.536 / mese
Spese annue Spese annue
€ 0
Proponi il tuo prezzoProponi il tuo prezzo

Classe Energetica

G
G
G
G
G
G
G
G
G
EP globale non rinnovabile:
0.00 kW h/m² anno
EP globale rinnovabile:
0.00 kW h/m² anno
EP invernale del fabbricato:
EP estiva del fabbricato:
Anno di costruzione:
1977
Riscaldamento:
Autonomo
Tipo impianto:
A radiatori
Tipo alimentazione:
Metano

Ti interessa visionare l'immobile?

Fissa un appuntamento  Fissa un appuntamento

Richiedi informazioni

Clicca su Leggi per aprire l'informativa
* Questi campi sono obbligatori

Calcola il tuo mutuo

Semplice e senza impegno
Anticipo

( % )
Mutuo

( % )

pochi semplici passi

inserisci i tuoi dati
Questionario completato
Grazie per aver richiesto un appuntamento senza impegno con un nostro Consulente del Credito e Assicurativo.

Hai inserito correttamente tutti i dati necessari e a breve riceverai una e-mail con un link da convalidare per inviare i tuoi dati.
Affiliato
Studio Concesio Srl
Via Europa, 188 25062 Concesio (BS)

Il nostro staff


  • Armando Iorio
    Affiliato

  • Noemi Casadio
    Coordinatrice

  • Marco Costabile
    Responsabile

  • Valentin Marin
    Collaboratore

  • Silvia Veronesi
    Collaboratrice
Via Europa, 188 25062 Concesio (BS)
Zona: Concesio
Mostra su mappa
Orari: lunedì - venerdì 09.00 - 12.30/14.30 - 19.30; sabato 09.00 - 12.30/14.30 - 16.00
Affiliato
Studio Concesio Srl
Via Europa, 188 25062 Concesio (BS)

2026 Tecnocasa Franchising S.p.A. - P. IVA 08365160152 - Via Monte Bianco 60/A 20089 Rozzano (MI). Ogni agenzia ha un proprio titolare ed è autonoma. Privacy policy | Policy utilizzo | Cookie policy